
The renewal of Westbury Estate
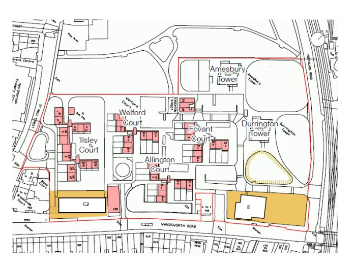
Westbury estate is a Lambeth Council post-war estate in Clapham Town, located on Wandsworth Road opposite Wandsworth Road station consisting of over 242 homes arranged in a mix of two-storey and four-storey maisonettes set in an open grassed landscape and mature trees. Phase 1 of the renewal is completed with 64 new social homes delivered for residents on the estate in 2021.
The estate which was identified as needing to be renewed to bring the homes up to a standard that residents deserve now and for the future had an approved masterplan already. Due to several new building/planning regulations and inflation, we are reviewing the previous master plan to ensure it can deliver the best value for residents and the Council.
What stage of the renewal process is my estate in?
We know that the best way to deliver affordable homes at Westbury is by working with a development partner. We have started the selection process for a development partner in Winter 2024 and are hoping to appoint a development partner in early 2026.
Latest News

February 2026
Housing Walk-About
Come and join our February estate walkabout on Wednesday, 25 February, starting at Durrington Tower at 11 am. We will be reviewing various issues on the estate and how we can resolve them.
Expected attendance from various Lambeth departments and local ward councillors.
Contact Kurwan at KCoote@lambeth.gov.uk or 07591434186 for any urgent housing issues in the meantime.
Resident Engagement Strategy

We are committed to involving you at every step of your estate renewal process and have a series of commitments which states how we will engage with any residents affected by the estate renewal process and what you can expect from us.
More information on the Key Guarantees, Local Engagement Plan( LEP) and Estate Renewal Resident Engagement Framework(EREF) can be found below.
Westbury Estate Masterplan

Westbury Estate has an existing masterplan approved in 2019.
Please find an FAQ about the masterplan below.
Repairs and Maintenance

If you require a repair to your home or the communal areas of your block or estate or report any maintenance issues, visit the repairs page below.
Get Involved

Do you want to be more active in the renewal process for Westbury estate, why not join the Resident Engagement Group?
The Westbury Resident Engagement Group (REG) have been meeting regularly to discuss the upcoming development partner selection procurement process for the next phase of the renewal of Westbury.
Read the latest ITLA newsletter below.
Westbury Team
Your Westbury Estate team is available to help you with any estate queries you might have.
Housing
- Liveability Housing Officer- Kwasi Atuah
Email: KAtuah@lambeth.gov.uk
- Wandsworth Road Housing Officer- Andrew Lerwill
Email: ALerwill@lambeth.gov.uk,Telephone: 07513 703 317
Renewal
- Resident Engagement Officer - Matty Marie
Email: MMarie@lambeth.gov.uk Phone: 0776 321 8633
- Tenant Decant Officer: Paul Gordon
Email: PGordon@lambeth.gov.uk,Telephone: 07904 088 857
Independant Resident Advisor
- NewmanFrancis- Irundeep Singh
Email: westbury@newmanfrancis.org,Telephone: 0800 644 6040 (freephone)
Phase 1 Completed New Homes

The new homes at Wandsworth road, SW8 3NA completed in April 2021. The development provides 64 homes for affordable rent.
Newsletters and Marketing Materials

All the past newsletters and communications sent relating to the Westbury Estate renewal project...
Phases
Present feedback from the Social Value Consultation
We will share the responses from the Social Value consultation to you and your neighbours. Please see the attached document.
Upcoming and ongoing events
Past events

Event date: February 16th, 2025 from 11:00 to 13:00.

Event date: September 14th, 2024 from 14:00 to 16:00.

Event date: July 16th, 2024 from 15:00 to 19:00.
Westbury Estate

Event date: June 30th, 2024 from 14:00 to 18:00.
Wandsworth Road

Event date: June 29th, 2024 from 14:00 to 18:00.
Wandsworth Road

Event date: June 28th, 2024 from 18:00 to 20:00.
Wandsworth Road
